МОБИЛЬНЫЕ КОМПЛЕКСЫ

Мобильный комплекс освения скважин (МКОС)


МКОС состоит из следующих основных блоков (комплектация может быть изменена по требованию заказчика):

  • блок узла регулирования давления первой ступени, состоящий из узла отбойников проппанта, штуцерной камеры ШК-80х70, дросселя регулируемого блок узла регулирования давления,
  • комплекта предохранительной, отсечной арматуры,
  • комплекта технических устройств по учёту (расходомер ГЖС, газа) и анализу (влагомер поточный), регуляторов уровня и давления;
  • блок входного вертикального сепаратора ГСВ-1;
  • блок узла регулирования давления второй ступени;
  • блок нефтегазосепаратора со сбросом воды НГСВ-1…4;
  • горизонтальная факельная установка (ГФУ);
  • автоматизированная система налива нефти в автоцистерны с измерительным узлом количества нефти сырой и насосной АСН;
  • измерительного узла количества нефти сырой на базе кориолисова массового расходомера;
  • автоматизированный стояк налива;
  • свечи рассеивания газа выветривания концевой ступени сепарационной установки (КССУ) СР-1 и газа, отводимого при наливе автоцистерн на стояке налива СР-2;
  • операторная с блоком обогрева вахтенного персонала. 

МОБИЛЬНЫЙ КОМПЛЕКС ОСВЕНИЯ СКВАЖИН (МКОС)

КОНСТРУКТИВНОЕ ИСПОЛНЕНИЕ

Несущей конструкцией типового блока МКОС является силовая рама с каркасом для крепления технологических трубопроводов, оборудования и кабельных эстакад, площадок обслуживания. Под рамой предусмотрены сани с дышлом для передвижения блоков на различных видах транспорта. Блоки размещаются в один ярус на плитах. Также возможно исполнение блоков на шасси.

Закрытые блок-боксы состоят из основания, каркаса, выполненного из металлического профиля, закрытого снаружи трёхслойными сэндвич-панелями с утеплителем из минеральной ваты.

Двери изготовлены из металла и утеплены, имеют замки и другие стопорные устройства. Входные группы включают в себя защитные козырьки и ступени.

Для погрузочно-разгрузочных и монтажных работ имеются строповочные элементы.

Транспортирование может осуществляться железнодорожным, автомобильным или водным транспортом. 

МОБИЛЬНЫЙ КОМПЛЕКС ОСВЕНИЯ СКВАЖИН (МКОС)

ОТОПЛЕНИЕ ВЕНТИЛЯЦИЯ

Поддержание заданных параметров воздуха в закрытых блоках предусмотрено за счет электрического отопления. В качестве нагревательных приборов предусмотрены обогреватели электрические в общепромышленном, либо взрывозащищенном исполнении.

Также предусматривается естественная приточно-вытяжная вентиляция и механическая вытяжная и при необходимости аварийная вытяжная вентиляция. 

Для удаления теплоизбытков, поступающих от оборудования, устанавливается осевой вытяжной вентилятор, который срабатывает по сигналу датчика температуры.

Для теплого периода в помещении операторной устанавливается сплит-система, для поддержания оптимальных параметров воздуха. 

МОБИЛЬНЫЙ КОМПЛЕКС ОСВЕНИЯ СКВАЖИН (МКОС)

АВТОМАТИЗАЦИЯ

Блоки МУПН, МКОС комплектуется приборами КИП во взрывозащищенном исполнении.

Блок бокс может комплектоваться:

  • локальной системой управления;
  • системой ввода/вывода, подключается к центральной системе управления находящийся в операторной по интерфейсу;
  • клеммной коробкой, подключается к центральной системе управления находящийся в операторной;

Для быстрого и удобного монтажа блок укомплектовывается быстроразъемными соединениями. Контрольные кабельные сети выполнены кабелем, проложенным в металлических коробах с крышкой.

В операторной установлен центральная система управления к которой подключаются локальные системы управления блоков, системы ввода/вывода или напрямую сигналы от датчиков, установленных на блоках.

Информация со всех приборов выводится на АРМ оператора.

Передача данных в АСУТП заказчика может осуществляться следующим образом (по согласованию):

  • по интерфейсу RS485 протокол Mdbus RTU;
  • по Ethetnet протокол Mdbus TCP;
  • по оптоволокну;
  • по радиорелейной линии;
  • по спутниковой связи. 

МОБИЛЬНЫЙ КОМПЛЕКС ОСВЕНИЯ СКВАЖИН (МКОС)

ЭЛЕКТРОСНАБЖЕНИЕ И ОСВЕЩЕНИЕ

Питание потребителей электроэнергией для каждого блока МКОС осуществляется от распределительного шкафа.

Предусмотрен электрообогрев трубопроводов и сепарационного оборудования, управление электрообогревом происходит от сигнала шкафа ЛСУ.

В блоках предусматривается следующие виды освещения: рабочее, аварийное и при необходимости наружное (для закрытых блок-боксов). В качестве источников света принимаются взрывозащищенные светодиодные светильники. Управление освещением осуществляется переключателями.

Электропроводка распределительной и групповой сети выполнены по системе TN-S.

В целях электробезопасности предусмотрено защитное заземление открытых проводящих частей с помощью специальных проводников, присоединенных отдельным зажимом к PE-проводникам. Защитному заземлению подлежат приборы КИПиА, металлические корпуса клеммных коробок, металлические части каркаса здания, металлические трубы.

По контуру блока прокладывается контур заземления с возможностью присоединения к внешнему контуру заземления

МОБИЛЬНЫЙ КОМПЛЕКС ОСВЕНИЯ СКВАЖИН (МКОС)

ПРЕИМУЩЕСТВА

  • Полная заводская готовность – можно немедленно приступать к эксплуатации изделия;
  • Применение современных материалов, отвечающим всем требованиям экологичности и безопасности;
  • Широкое климатическое применение;
  • Значительный срок эксплуатации – 20 лет;
  • Максимальная надежность строительных конструкций;
  • Эстетичность используемых отделочных материалов;
  • Изготовление по индивидуальному заказу. Возможность изменения комплектации комплекса по желанию Заказчика;
  • Различные типоразмеры помещений. 

МОБИЛЬНЫЙ КОМПЛЕКС ОСВЕНИЯ СКВАЖИН (МКОС)

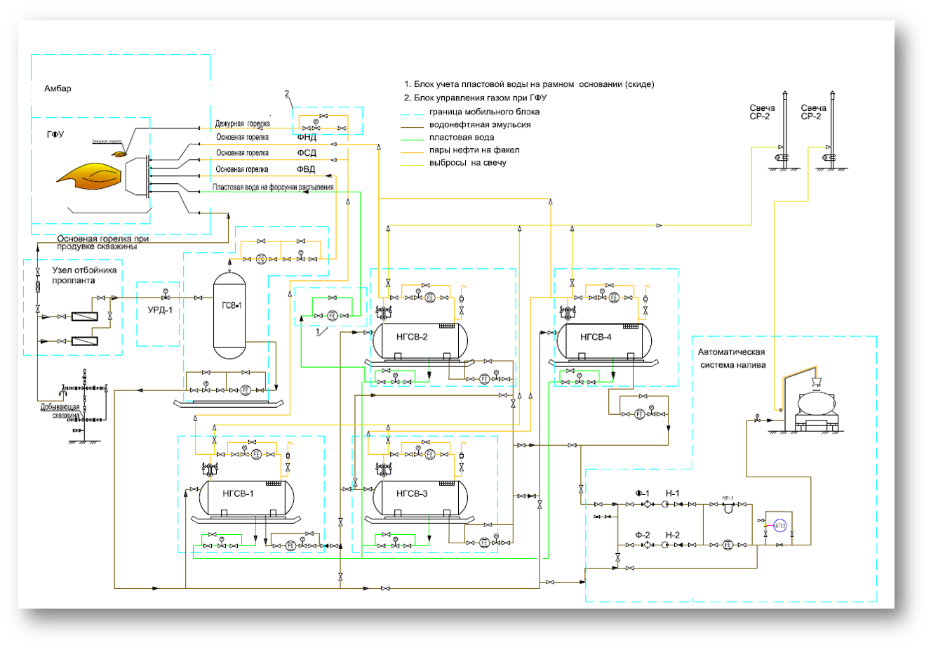
ТЕХНОЛОГИЧЕСКАЯ СХЕМА

МОБИЛЬНЫЙ КОМПЛЕКС ОСВЕНИЯ СКВАЖИН (МКОС)

ВАРИАНТЫ КОМПЛЕКТАЦИИ

МКОС-300-6,3-200-3-ОП-ПТ-ЭДГ-1-НП-ФУ-БДР-НС-2В1-0-РЛЛ-0-КТП-0-БО-ХЛ-Exd-2 

      1       2     3     4    5   6     7    8     9  10  11   12     13   14 15 16   17 18   19 20 21   22   23 

1 Вид установки:

  • МУПН (Мобильная установка подготовки нефти)
  • МКОС (Мобильный комплекс освоения скважин)
  • ПКИОС (Передвижной комплекс для исследования и
  • освоения нефтегазовых скважин)
  • МБСНУ (малогабаритная блочная сепарационно-наливная установка)

2 Расход ГЖС, м3/ч

  • 300
  • 1000
  • 2000

3 Давление на входе, Мпа

  1. 6,3
  2. 21
  3. 70

4 Газовый фактор, м3/м3

  • 200
  • 250
  • 300
  • 350
  • 400
  • 500
  • 600
  • 700
  • 800
  • 900
  • 1000
  • 1500
  • 2000 

 5 Качество нефти по требованиям ГОСТ 51858-2002, группы

  • 1
  • 2
  • 3

6 Наличие отбойника проппанта:

  • ОП – наличие
  • 0 – без отбойника

7 Наличие печи подогрева нефти ПТ

  • ПТ – наличие
  • 0 – отсутствие печи

8 Наличие электродегидратора ЭДГ

  • ЭДГ – наличие
  • 0 – отсутствие

9 Резервуарный парк РП

  • 1 – да
  • 0 – нет

10 Способ утилизации воды

  • НП (Установка закачки воды в пласт с буферной емкостью)
  • СЖ – утилизация воды на факеле
  • АТ – перевозка автотранспортом

11 Наличие факельной установки

  • ФУ – наличие
  • 0 - отсутствие

12 Наличие блока дозирования реагентов в комплекте:

  • БДР – наличие
  • 0 – отсутствие
13 Налив
  • НУ - Установка налива
  • НС – налив в сеть заказчика
14 Степень автоматизации
  • ПА – шкафы управления на каждом блоке
  • МСД – модули сбора данных на каждом блоке
  • 2В1 – шкафы по одному на несколько одинаковых блоков
  • 2В1-МСД – модули сбора данных на несколько одинаковых блоков
  • КК – клеммные коробки на блоках
15 Дополнительные опции для вариантов комплектации ПА, МСД, 2В1, 2В1-МСД
  • 0 – связь со шкафом управления в операторной по проводу
  • 1 – связь со шкафом управления в операторной беспроводная
16 Передача данных в АСУТП заказчика
  • 0 – отсутствие
  • RS – RS485 протокол Mdbus RTU
  • ET – Ethetnet протокол Mdbus RTU
  • ОВ – оптоволокно
  • РЛЛ – радиорелейная линия
  • СС – спутниковая связь
17 Спутниковая связь
  • 1 – да
  • 0 – нет  
18 Наличие
  • ДЭС (дизельная электростанция)
  • КТП (Трансформаторная подстанция)
  • 0 – от заказчика
  • 19 Наличие быстроразъемных соединений кабельной продукции (ЭОМ, АТХ, ПС) на границе блоков
  • БРС - наличие
  • 0 – отсутствие
20 Наличие блока операторной
  • БО - наличие
  • 0 – отсутствие
21 Климатическое исполнение
  • ХЛ
  • УХЛ
  • У
  • Т
22 Тип взрывозащиты
  • Exd
  • Exi
23 Способ транспортировки
  • 1 – шасси
  • 2 – сани
  • 3 – скид  

МОБИЛЬНЫЙ КОМПЛЕКС ОСВЕНИЯ СКВАЖИН (МКОС)

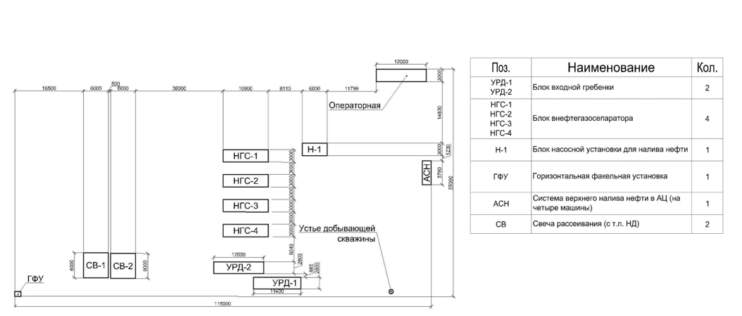
КОМПОНОВКА МКОС

МОБИЛЬНЫЙ КОМПЛЕКС ОСВЕНИЯ СКВАЖИН (МКОС)

ПРИМЕРЫ РЕШЕНИЙ

МОБИЛЬНЫЙ КОМПЛЕКС ОСВЕНИЯ СКВАЖИН (МКОС)

СЕРТИФИКАТЫ

Cookie-файлы
Настройка cookie-файлов
Детальная информация о целях обработки данных и поставщиках, которые мы используем на наших сайтах
Аналитические Cookie-файлы Отключить все
Технические Cookie-файлы
Другие Cookie-файлы
Мы используем файлы Cookie для улучшения работы, персонализации и повышения удобства пользования нашим сайтом. Продолжая посещать сайт, вы соглашаетесь на использование нами файлов Cookie. Подробнее о нашей политике в отношении Cookie.
Понятно Подробнее
Cookies